首页 > 政府信息公开目录 > 梅州市自然资源局梅县分局 > 部门文件

梅州市梅县区港锐实业有限公司厂房建设项目规划公示

时间:2025-12-02   来源:本网   【字体: 大 || 中 || 打印


类  型

批前公示

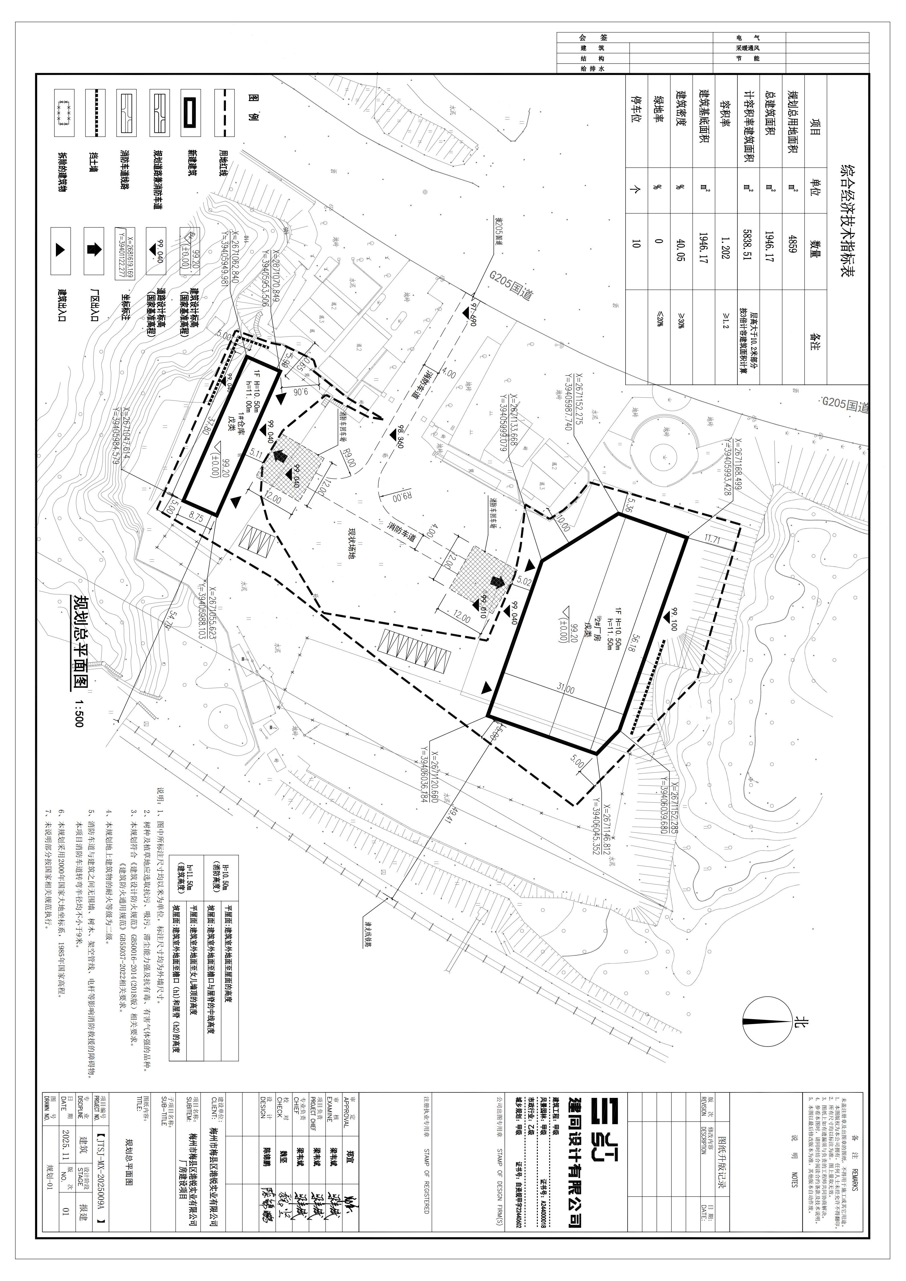
项目名称

梅州市梅县区港锐实业有限公司厂房建设项目

建设地点

梅县区梅南镇新塘村

建设单位

梅州市梅县区港锐实业有限公司

  梅州市梅县区港锐实业有限公司拟在梅县区梅南镇新塘村兴建梅州市梅县区港锐实业有限公司厂房建设项目,具体详见规划批前公示图。    

  我局正在审查该拟建项目的规划方案,特对该方案进行规划批前公示,公示日期为2025年12月2日至2025年12月11日。如对该规划方案有异议,请在公示期内通过网上或信函、电话等方式反馈意见,有效的反馈意见必须包括反馈者的真实姓名、有效的联系方式,并提供公示事项与其有利害关系的证明。

  公示地点:现场、网上(网址:http://www.gdmx.gov.cn)

  经办股室:国土空间与村镇规划股

  联系电话:2586961


梅州市自然资源局梅县分局

                                                                  2025年12月2日                                                                                                                                                                                                                                                                                                                                                                                                                                                                                                                                                                                                                                                                                                                                                                                                                                                                                                                                                                                                                                                                                                                                                                                                                                                                                                                                                                                                                                                                                                                                                                                                                                                                                                                                                                                                                                                                                                                                                                                                                                                                                                                                                                                                                                                                                                                                                                                                                                                                                                                                                                                                                                                                                                                                                                                                                                                                                                                                                                                                                                                                                                                                                                                                                                                                                                                                                                                                                                                                                                                                                                                                                                                                                                                                                                                                                                                                                                                                                                                                                                                                                                                                                                                                                                                                                                                                                    


附件:梅州市梅县区港锐实业有限公司厂房建设项目规划公示.pdf
附件:梅州市梅县区港锐实业有限公司厂房建设项目公示图1.jpg
附件:梅州市梅县区港锐实业有限公司厂房建设项目公示图2.jpg