梅州市自然资源局梅县分局
我的收藏
收藏
政府信息公开
搜索位置
标题
全文
排序方式
按时间
按相关度
规章
下载文字版
下载图片版
索引号:
11441403007214730K/2022-00220
分类:
国土资源、能源、其他
发布机构:
梅州市自然资源局梅县分局
成文日期:
2022-06-16
名称:
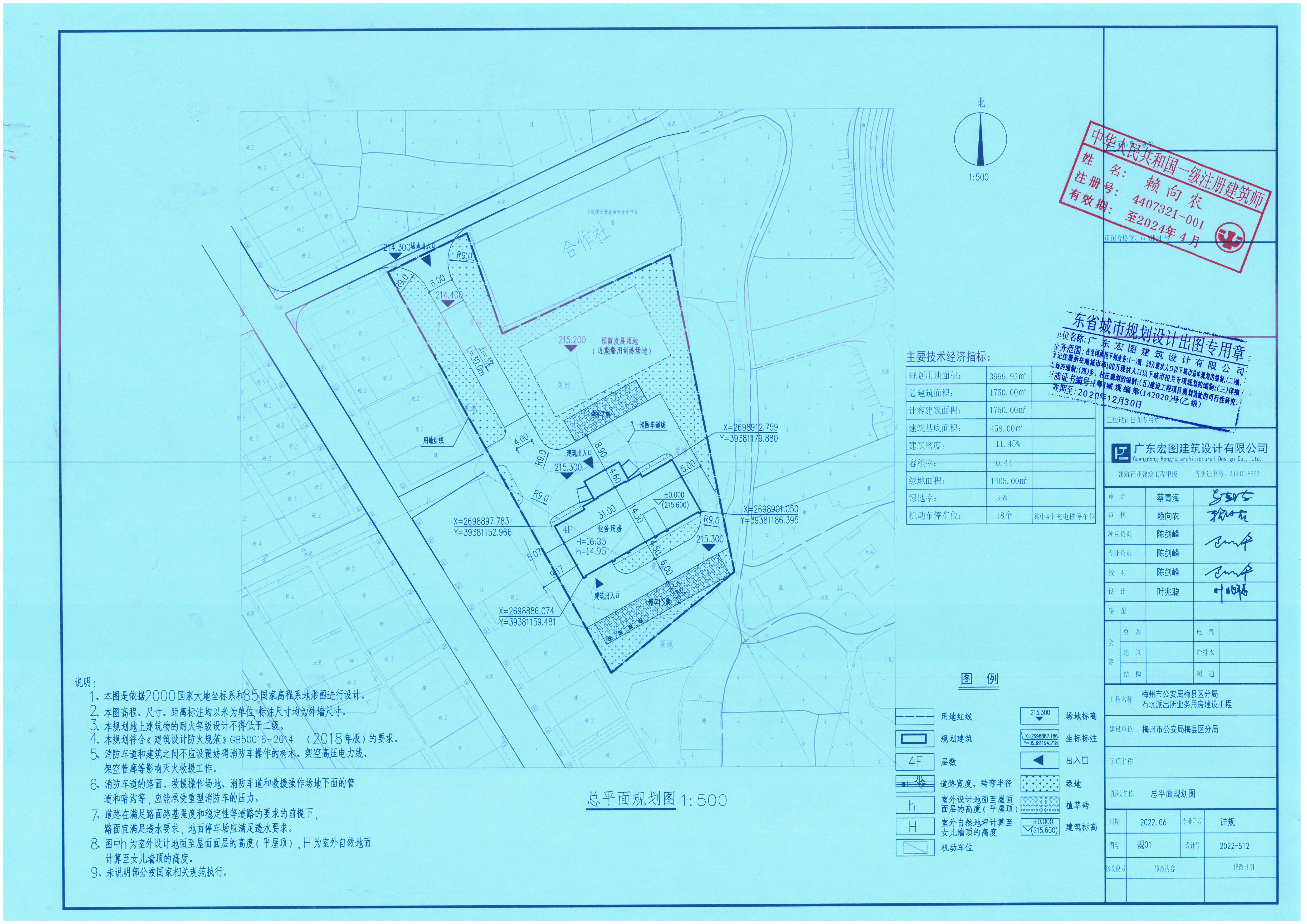
梅州市公安局梅县分局石坑派出所业务用房建设项目规划方案公示
文号:
发布日期:
2022-06-16
主题词:
文件状态:
现行有效
梅州市公安局梅县分局石坑派出所业务用房建设项目规划方案公示
发布日期:2022-06-16 浏览次数:
-